Plastikpõranda müük
0.00 € (lisandub KM)
- Ideaalne pinnasekaitse lahendus telkidesse, üritustele ja näitustele
- Tekstuurne libisemisvastane pealiskate
- Võimalik paigaldada erineva kuju ja suurusega
- Põranda paksus 3,6cm
- Põranda detailide mõõdud 50cmx50cm
- Põrand sobib nii sise- kui välitingmisustesse
- Põrand kannatab autoga peale sõitmist siledal pinnasel
- Ühe ruutmeetri kaal 6kg
- Põranda all on kaablite installatsiooni jaoks sooned
- Põranda värvivalik – Helehall/tumehall/must/valge/punane
- Tootega saate tutvuda meie laos
Plastikpõranda müük
Plastikpõrand on atraktiivne ja lihtsasti kasutatav modulaarne põrandalahendus, millel on lukustatav süsteem.
Plastikpõrand on vastupidav ja töökindel ning ideaalne lahendus telkidele, messidele, üritustelkidele ja festivalidele. Nutikas lukustussüsteem võimaldab kiiret paigaldust ja lahtivõtmist ning seda saab kohandada erinevatele paigutustele ja suurustele.
Plaadid on kerged ja kergesti puhastatavad ning kahe inimesega saab 100 ruutmeetri suuruse põranda paigaldada umbes 20 minutiga.
Plastikpõranda plaadid on saadaval erinevates värvitoonides, mis võimaldavad luua erinevaid efekte, sealhulgas malelaua stiilis tantsupõrandaid.
Saadaval on ka plaadiäärised, mis sobivad suurepäraselt sissepääsude, väljapääsude ja liikumispuudega inimeste ligipääsu tagamiseks, pakkudes professionaalset viimistlust.
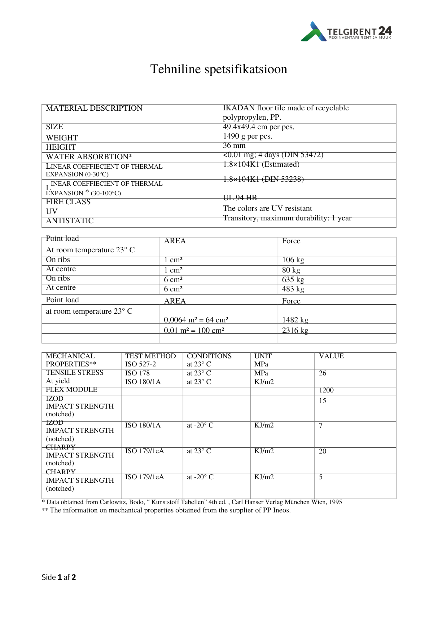
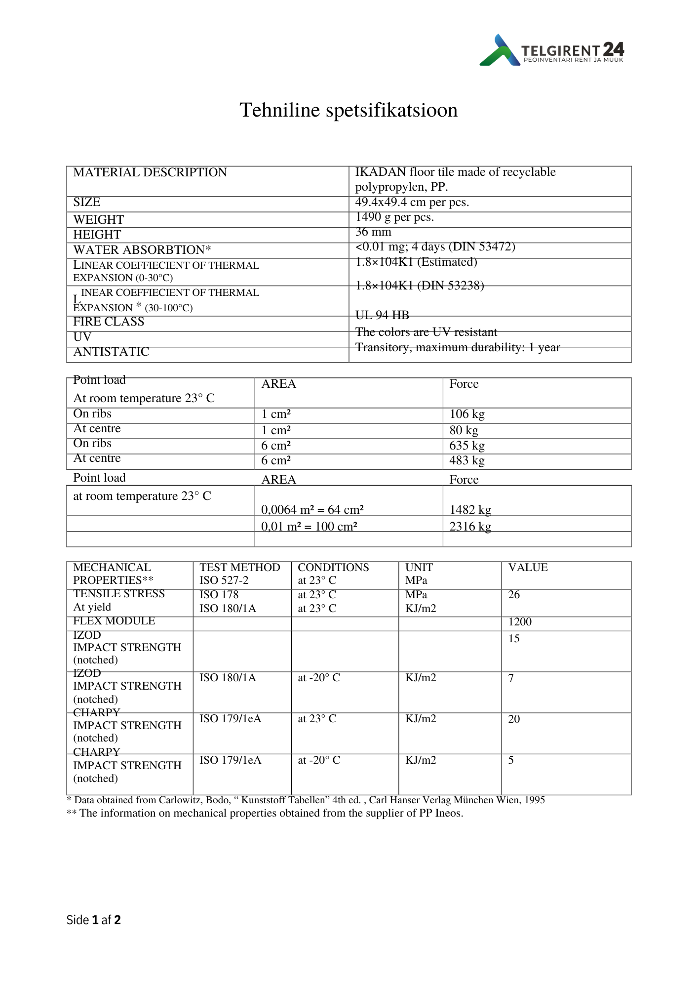
Tootespetsifikatsioonid
- Taaskasutatav polüpropüleen
- Suurus: 49,4 cm x 49,4 cm ühe plaadi kohta
- Kaal: 1,5 kilogrammi ühe plaadi kohta / 6 kilogrammi ruutmeetri kohta
- Värvuse valik: Must / Valge / Helehall / Tumehall / Marmorhall / Punane
- Libisemiskindel pind
- Kaabelduskanalid
- UV-kindel
- Põrand kannatab autoga peale sõitmist
Play Video
Transport ja paigaldusinfo
- Rendi puhul kujuneb inventari transpordi hind vastavalt toodete kogusele ja objekti asukohale.
- Transpordil arvestame 4 otsa transporti ehk meie laost objektile – tagasi lattu ja uuesti inventarile objektile järgi ning tagasi meie lattu.
- Vajadusel kasutatakse mitut kaubikut ja/või veoautot sõltuvalt inventari kogusest ja paigalduse mahust.
- Paigaldusteenuse osutamiseks vajalike paigaldajate kogus mõjutab kogukulu. Mida keerukam või suuremahulisem objekt, seda rohkem inimesi läheb vaja.
- Tallinnast väljapoole alates 0,60€ /km alguskohaga meie laost.
- Müügitooted saate kätte meie laost või saadame Teile kas kulleriga või transpordifirmaga kui on alusekaup.
- Meie ladu asub aadressil Kuma tee 3 Peetri
